图片
浦东区 东方大厦272平 精装修 出租
繁华商圈
中心商务区
交通便利
赠免租期
房源负责人:戴焱Daniel
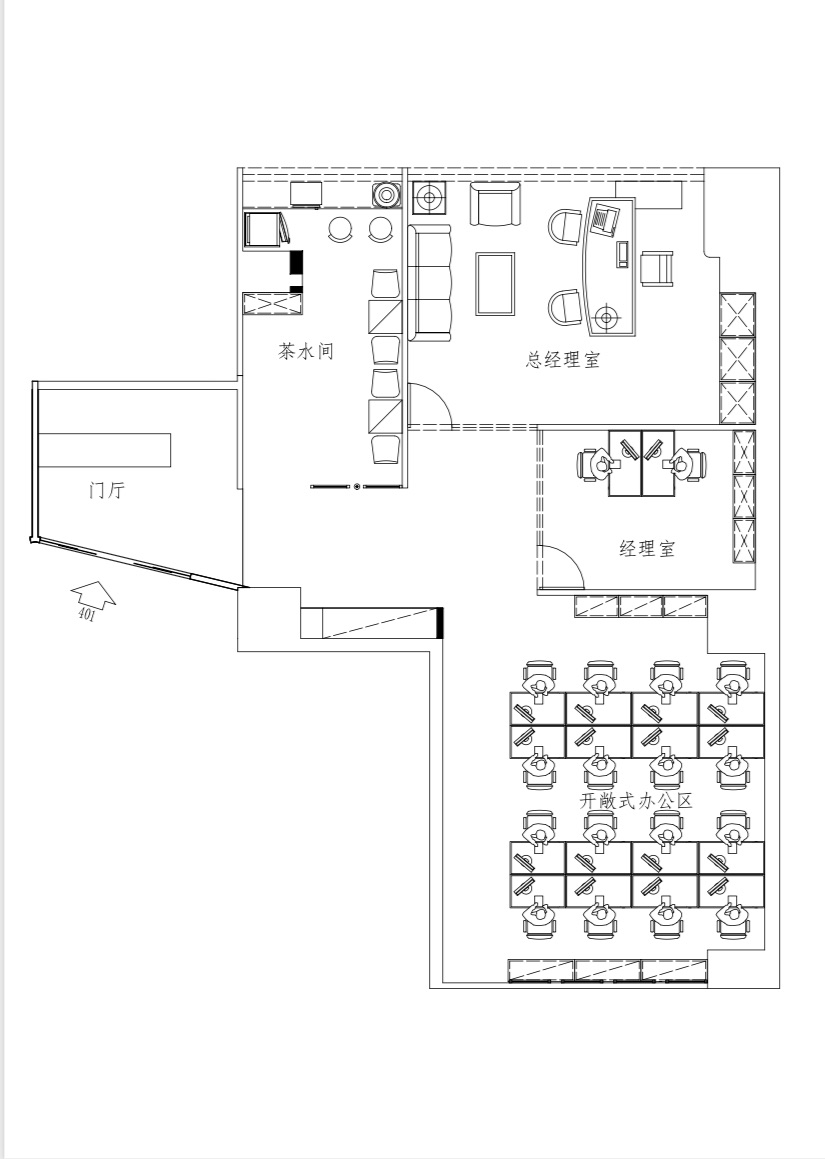
272
可容纳24人左右
4.08元/㎡/天
总价 ¥33755.2元/月
精装
装修
上海浦东新区世纪大道1500号
房源楼层:
低层
交付标准:
精装修交付
付款方式:
押三付二
朝向:
物业费用:
16.5元/㎡/月
功能布局:
3隔间,24人工位
免租时间:
1个月
空调费用:
/
停车费用:
600.00 /元/月/个
房源描述

上海东方大厦坐落于浦东新区世纪大道松林路口,地理位置优越,交通便捷,地铁4号线浦电路站近在咫尺。距延安东路隧道仅三分钟车程,离南浦大桥、杨浦大桥只需十分钟,离浦东国际机场约30分 钟。周边高楼大厦林立,为东方大厦带来无限的商机和增值潜力。

预约看房
真实在租 免佣服务
浦东区 东方大厦272平 精装修 出租
立即预约
所属大厦
东方大厦
大厦均价:
2.8-3.5
竣工时间:
1997-8-11
车位数量:
地下100个,地上80个
物业公司:
上海久联物业管理有限公司
位置周边
附近房源